Appartement T2 de 54,78 avec loggia 213 125 €

T2 de 54,78 avec loggia

2 pièces 54.78m2 Exclusivité

Référence : 41851

Conditions de vente
213 125 € 3 891 € / m²

Charges immeuble
Non renseignée

Taxe foncière
Non renseignée

Description

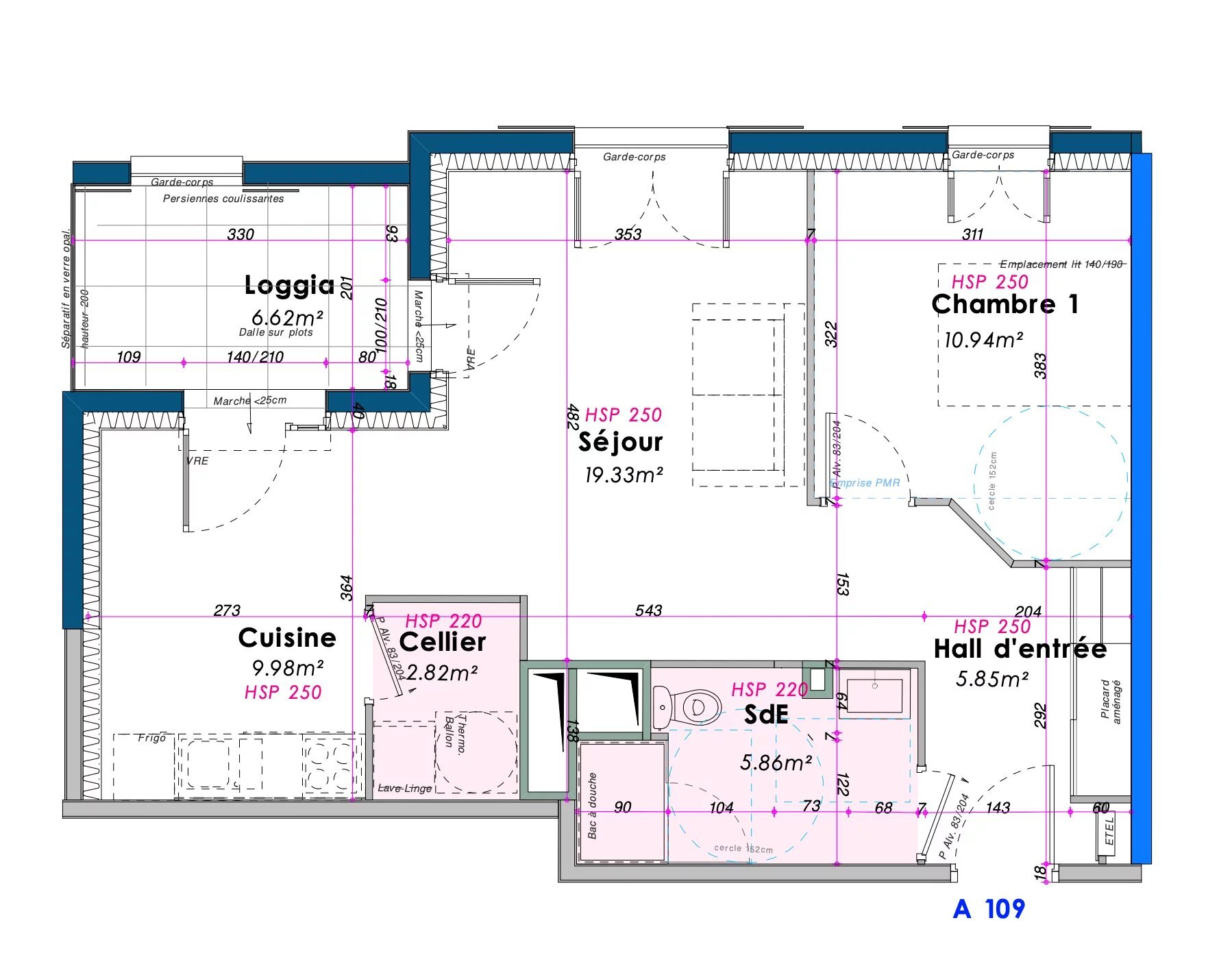
Appartement T2 de 54,78 avec loggia Idéalement placé sur l'ile d'Oléron, dans une résidence moderne. Son centre-ville, ses ruelles piétonnes, ses marchés et ses nombreuses boutiques en font un lieu de villégiature très apprécié. Exclusivité : soit pour y habiter ou soit pour y investir avec des conditions exceptionnelles (LMNP, LMP) Cet appartement se compose : - d'une entrée - d'un cellier - d'un séjour - d'une cuisine - d'une salle d'eau - d'une chambre - d'une loggia. Pour plus d'information, merci de nous contacter directement.

Mis à jour le 05/11/2025

Caractéristiques
  • 1 chambre
  • Étage : 1
  • 1 douche
  • Ascenseur
  • Vue exceptionelle
Relevés techniques

Orientation
Nord


Diagnostic de performance énergétique :

Les informations sur les risques auxquels ce bien est exposé sont disponibles sur le site Géorisques: www.georisques.gouv.fr

Candidater / S'inscrire à une visite
Proposé par
Signaler cette annonce



Biens similaires