Maison La Garenne Colombes 1 600 000 €

Maison La Garenne Colombes

6 pièces 165.64m2 Exclusivité

Référence : 56410

Conditions de vente
1 600 000 € 9 660 € / m²

Charges immeuble
Non renseignée

Taxe foncière
Non renseignée

Description

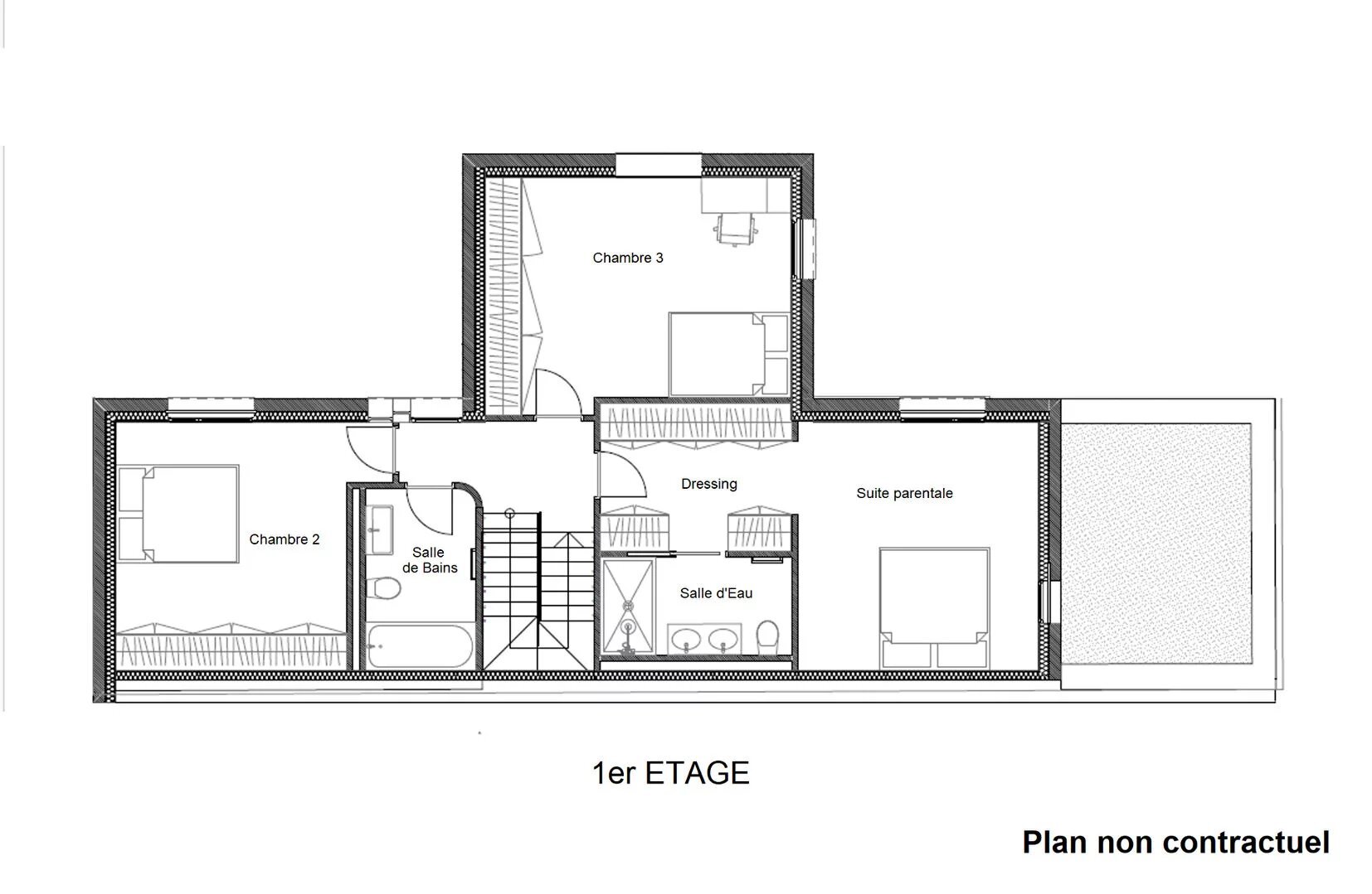
Maison La Garenne Colombes Rare à La Garenne ! Maison familiale avec beau jardin. Idéalement située dans un quartier prisé, au calme d'une rue pavillonnaire, venez découvrir cette superbe maison récente aux prestations de qualité, nichée en coeur d'îlot et conforme aux dernières normes de performance énergétique. Édifiée sur un terrain de 387 m², cette demeure lumineuse d'environ 166 m² (R+1) séduira les familles en quête d'espace, de confort et de sérénité. Au rez-de-chaussée, un espace de vie baigné de lumière : Dès l'entrée, laissez-vous séduire par une magnifique pièce de vie d'environ 55 m², pensée pour recevoir et partager des moments chaleureux. La cuisine ouverte s'intègre parfaitement à l'ensemble salle à manger/salon, sublimé par de grandes baies vitrées qui laissent entrer la lumière naturelle et s'ouvrent sur un splendide jardin exposé sud-ouest, véritable havre de paix en pleine ville. Ce niveau comprend également : Une chambre confortable, idéale pour une suite d'amis, un bureau ou une chambre parentale de plain-pied Une salle d'eau moderne Un WC indépendant Une pièce annexe de 15 m² attenante au séjour, offrant de multiples possibilités. À l'étage, un espace nuit généreux et bien agencé : Une grande suite parentale de plus de 28 m² avec salle d'eau privative (double vasque, douche à l'italienne, WC) Deux belles chambres supplémentaires de 18,5 m² et 16,2 m² Une salle de bains avec WC Extérieurs et stationnement Le jardin de 213 m² environ invite à la détente et aux repas en plein air. Deux emplacements de stationnement complètent ce bien. À proximité des écoles (sectorisation maternelle Sagot Voltaire et élémentaire Jerphanion), et des transports : tramway T2 Les Fauvelles (ligne La Défense/Porte de Versailles), gare SNCF de Courbevoie (ligne Saint Lazare) à 12 minutes. Visuels et photos non contractuels.

Mis à jour le 05/11/2025

Caractéristiques
  • 4 chambres
  • 1 salle d'eau
  • Bâtiment de : 2 étages
  • 2 parkings
  • Construit

Surface du terrain bâti inclus
387 m²

Relevés techniques

Orientation
Ouest


Diagnostic de performance énergétique :

Les informations sur les risques auxquels ce bien est exposé sont disponibles sur le site Géorisques: www.georisques.gouv.fr

Biens similaires