139 000 €

Terrain constructible

Terrain constructible

34320 GABIAN
0 pièce
Référence : 65185
139 000 €

Conditions de vente

139 000 €

Charges immeuble
Non renseignée
Taxe foncière
Non renseignée

Informations


Surface du terrain bâti inclus
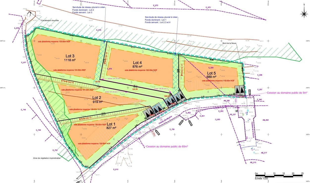
919 m²

Description

Dans un lotissement calme et agréable. découvrez ce terrain plat et viabilisé de 919 m², prêt à accueillir votre projet de construction. Surface de plancher possible : jusqu’à 300 m² – laissez libre cours à votre imagination : villa familiale, piscine, garage - Proche de toutes les commodités : commerces, école, services - Quartier résidentiel, bonne exposition et environnement verdoyant - Libre constructeur – terrain entièrement viabilisé - À seulement quelques minutes de Pézenas Les informations sur les risques auxquels ce bien est exposé sont disponibles sur le site Géorisques
Mis à jour le 07/01/2026