1 750,00 € cc
33,65 € / m²

LOCATION APPARTEMENT T2 VIDE

LOCATION APPARTEMENT T2 VIDE

Maison-Blanche 75013 Paris 13ème
2 pièces 52 m2
Référence : 70418
1 750,00 € cc
33,65 € / m²

Conditions de location

1 750,00 € / mois cc

Charges
Non disponible
Dépôt de garantie
1 555,00 €
Honoraires agence
Non disponible
Disponibilité
Dès maintenant
Durée du bail
Colocation
Non

Informations

1 chambre
Étage : 3
1 salle d'eau
1 WC
Gardien
Ascenseur

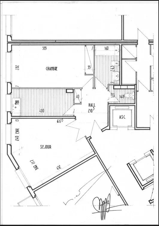
Description

LOCATION APPARTEMENT T2 VIDE 75013 Paris - Rue de la Butte aux cailles - A 350m du métro Corvisart (Ligne6) et proche des commerces. Dans un immeuble sécurisé avec gardien. Nous vous proposons un appartement de deux pièces vides, lumineux d'une surface de 52m2 situé au 3ème étage avec ascenseur. Le bien se compose d'une entrée avec rangement, un séjour spacieux, une chambre avec placards, une cuisine, une salle de bains et d'un WC séparé. Chauffage et eau chaude : Collectifs Une cave ainsi qu'une place de parking accompagnent ce bien. Honoraires de location : 1 mois de loyer charge compris.
Mis à jour le 27/03/2026

Relevés techniques

Diagnostic de performance énergétique :

Production eau chaude

Production chauffage


Les informations sur les risques auxquels ce bien est exposé sont disponibles sur le site Géorisques : www.georisques.gouv.fr