1 170,00 € cc
18,82 € / m²

Appartement nu à louer

Appartement nu à louer

78120 RAMBOUILLET
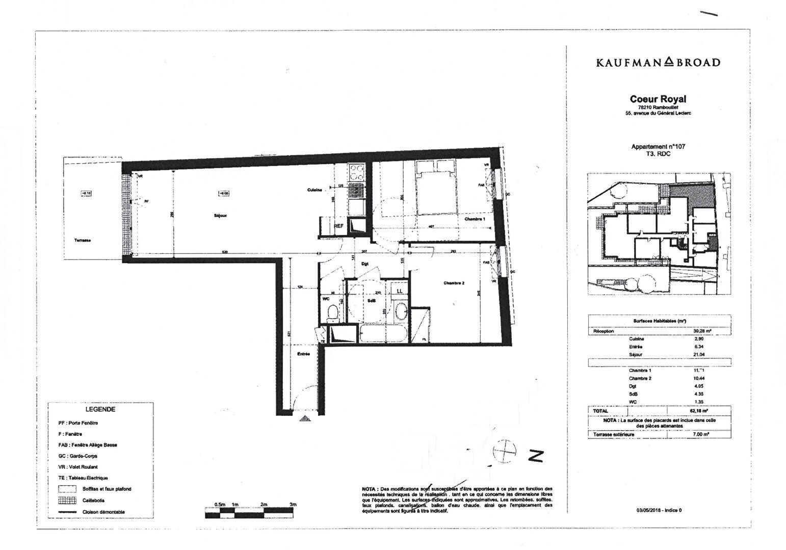
3 pièces 62.18 m2
Référence : 74760
1 170,00 € cc
18,82 € / m²

Conditions de location

1 170,00 € / mois cc

Charges
150,00 €
Dépôt de garantie
1 020,00 €
Honoraires agence
870,52 € TTC *
Disponibilité
Dès maintenant
Durée du bail
1 an
Colocation
Non

* Dont 186,54 € TTC pour la réalisation de l'état des lieux

Informations

2 chambres
Étage : RDC
1 salle d'eau
1 WC
Bâtiment de : 3 étages
Terrasse
1 parking
Ascenseur
Copropriété
Construit 2020

Description

Très bel appartement traversant de 3 pièces de 62,18m2 dans résidence récente comprenant: une entrée, un séjour avec coin cuisine aménagé , un dégagement, 2 chambres dont une avec placard, une salle de bains équipée, un WC séparé. Cuisine Aménagée avec hotte et plaque vitrocéramique. Une belle terrasse de 7 m² exposée sud. Une place de stationnement en sous-sol large accès PMR. Accès gare 5 min en bus et 15 min à pieds Accès commerces 10 min à pieds Disponibilité: 30 décembre 2025 Loyer mensuel CC: 1170 euros dont 150 euros de charges. Les charges comprennent notamment le chauffage, l'eau chaude et l'eau froide. HCL: 497.44 euros EDL: 186.54 euros Dépôt de Garantie : 1020 euros
Mis à jour le 13/11/2025

Équipements

Fibre

Relevés techniques

DPE : 78
A
B
C
D
E
F
G
GES : 18
A
B
C
D
E
F
G
Diagnostic réalisé le: 23/11/2020

Production eau chaude

Production chauffage
Collectif


Les informations sur les risques auxquels ce bien est exposé sont disponibles sur le site Géorisques : www.georisques.gouv.fr

Détails des surfaces

Espace
Carrez
Au sol
Séjour
30.28 m²
0 m²

Total
30.28 m²
0.00 m²