894,00 € cc
22,15 € / m²

Appartement nu à louer

Appartement nu à louer

94500 CHAMPIGNY SUR MARNE
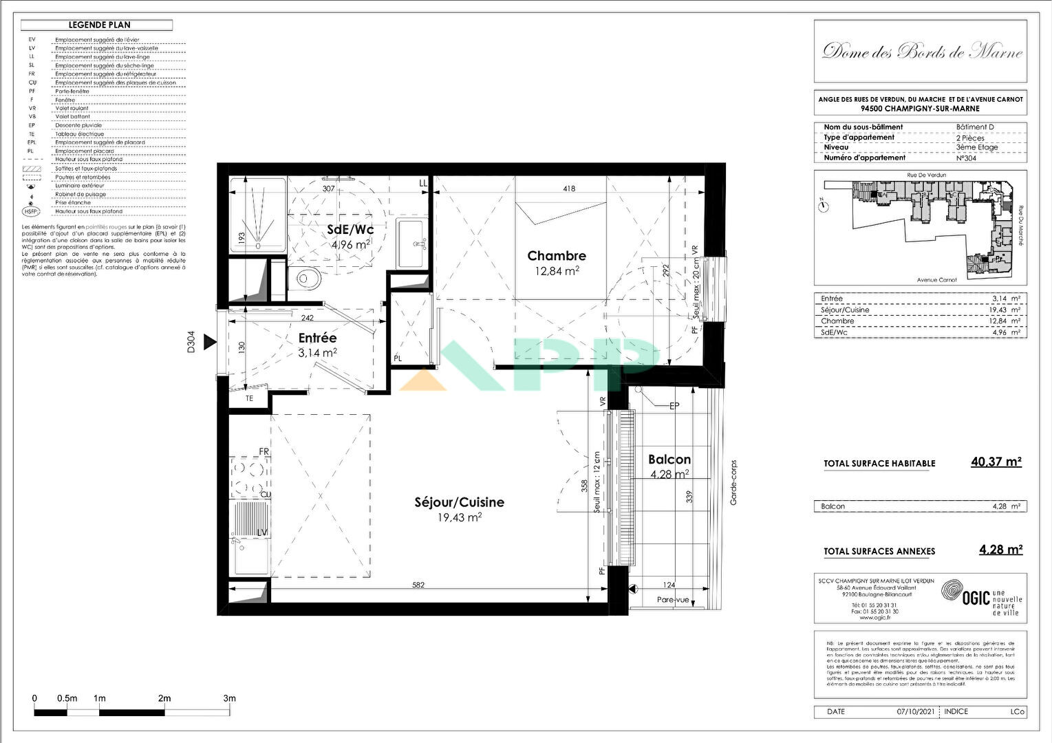
2 pièces 40.37 m2
Référence : 75173
894,00 € cc
22,15 € / m²

Conditions de location

894,00 € / mois cc

Charges
130,00 €
Dépôt de garantie
764,00 €
Honoraires agence
645,92 € TTC *
Disponibilité
Dès maintenant
Durée du bail
3 ans
Colocation
Non

* Dont 121,11 € TTC pour la réalisation de l'état des lieux

Informations

1 chambre
Étage : 3
1 salle d'eau
1 WC
Bâtiment de : 5 étages
Ascenseur
Copropriété
Construit 2025

Description

A Champigny-sur-Marne, à l'angle des rues de Verdun, du Marché et de l'avenue Carnot, et à 8 min* à pied de la gare RER A de Champigny, et proche de la future station de métro du Grand Paris ligne 15. F2 de 40,37m² habitables avec parking en sous-sol. entrée, cuisine ouverte sur séjour accès balcon, chambre avec placard, salle d'eau avec WC. Libre le 15 octobre 2025. Loyer 764 euros + 130 euros de charges (eau et chauffage inclus). Mode de répartition des charges locatives : régularisation aux tantièmes. (Bien soumis au statut de la copropriété). Honoraires d'agence : 524.81 euros (Les honoraires de location incluent le montant de rédaction des états des lieux.)
Mis à jour le 24/03/2026

Équipements

Fibre

Relevés techniques

Diagnostic de performance énergétique : En cours

Production eau chaude

Production chauffage
Collectif


Les informations sur les risques auxquels ce bien est exposé sont disponibles sur le site Géorisques : www.georisques.gouv.fr

Détails des surfaces

Espace
Carrez
Au sol
Séjour
19.43 m²
19.43 m²

Total
19.43 m²
19.43 m²