449 000 €
7 434 € / m²

3 pièces COURBEVOIE BECON avec balcon-terrasse et vue dégagée

3 pièces COURBEVOIE BECON avec balcon-terrasse et vue dégagée

92400 Courbevoie
3 pièces 60.4 m2 Exclusivité
Référence : 76310
449 000 €
7 434 € / m²

Conditions de vente

449 000 €

Charges immeuble
Non renseignée
Taxe foncière
Non renseignée

Informations

2 chambres
Étage : 6
1 salle d'eau
1 WC
Bâtiment de : 16 étages
Construit

Description

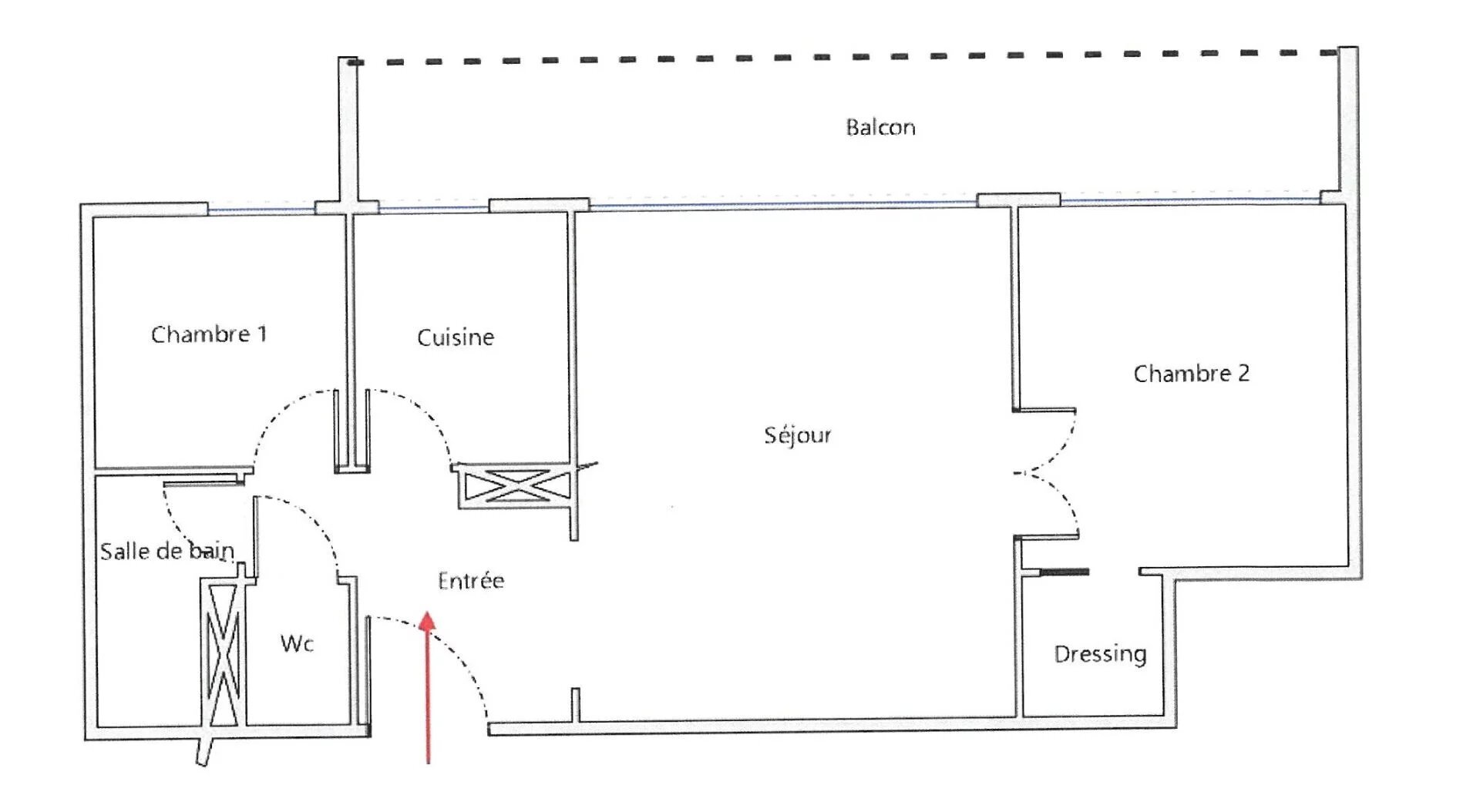
3 pièces COURBEVOIE BECON avec balcon-terrasse et vue dégagée COURBEVOIE ? SECTEUR BÉCON / CENTRE-VILLE Au coeur du quartier recherché de Bécon, à proximité immédiate des commerces et des transports, découvrez ce bel appartement 3 pièces offrant un balcon - terrasse de 10 m², une vue dégagée et une excellente luminosité. Situé en étage élevé, ce bien se compose d'une entrée, d'une cuisine aménagée, d'un séjour ouvrant sur la terrasse, de deux chambres, d'une salle de bains, de WC séparés et d'un dressing. Une cave ainsi qu'une place de parking en sous-sol complètent l'ensemble. L'appartement est en parfait état, habitable immédiatement, sans aucun travaux à prévoir. Adresse idéale, à proximité directe de la gare SNCF Bécon-les-Bruyères (ligne directe vers Paris Saint-Lazare) et du métro Pont de Levallois ? Ligne 3, permettant un accès rapide à La Défense et au centre de Paris. Copropriété de 602 lots - dont 384 lots habitation. (). Charges annuelles : 3464 euros.
Mis à jour le 07/01/2026

Relevés techniques

Diagnostic de performance énergétique :

Production eau chaude

Production chauffage


Les informations sur les risques auxquels ce bien est exposé sont disponibles sur le site Géorisques : www.georisques.gouv.fr