677,88 € cc
33,88 € / m²

Appartement nu à louer

Appartement nu à louer

20 Cité Nouvelle 92110 CLICHY
2 pièces 20.01 m2
Référence : 76981
677,88 € cc
33,88 € / m²

Conditions de location

677,88 € / mois cc

Charges
30,00 €
Dépôt de garantie
647,88 €
Honoraires agence
360,18 € TTC *
Disponibilité
Dès maintenant
Durée du bail
3 ans
Colocation
Non

* Dont 60,03 € TTC pour la réalisation de l'état des lieux

Informations

1 chambre
Étage : 2
1 salle d'eau
1 WC
1 cave
Copropriété
Construit 1948

Description

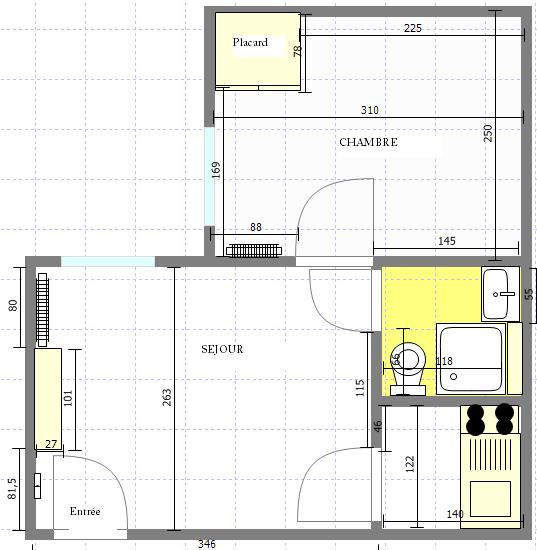
CLICHY - Cité nouvelle Au 2ème étage d'un immeuble ancien, 2 pièces très bien agencé et entièrement rénové comprenant séjour, cuisine, chambre salle d'eau. Chauffage et eau chaude en individuel électrique. Cave en sous sol Disponible le 14/11/2025. Proximité des commerces et métro ligne 13 (mairie de clichy) Frais d'actes de location 300.15 eurosTTC (si bail loi 89) Pour prendre rendez-vous afin de visiter le bien, veuillez cliquer sur le lien suivant : https://www.plato.immo/c/FNCN Aucune demande de visite par téléphone ne sera traitée.
Mis à jour le 31/03/2026

Relevés techniques

DPE : 324
A
B
C
D
E
F
G
GES : 10
A
B
C
D
E
F
G
Diagnostic réalisé le: 10/05/2022

Montant estimé des dépenses annuelles d'énergie pour un usage standard : entre 450 € et 640 € par an.

Production eau chaude

Production chauffage
Individuel Électrique


Les informations sur les risques auxquels ce bien est exposé sont disponibles sur le site Géorisques : www.georisques.gouv.fr

Détails des surfaces

Espace
Carrez
Au sol
Séjour
8.96 m²
8.96 m²

Total
8.96 m²
8.96 m²