2 300 003 €
5 661 € / m²

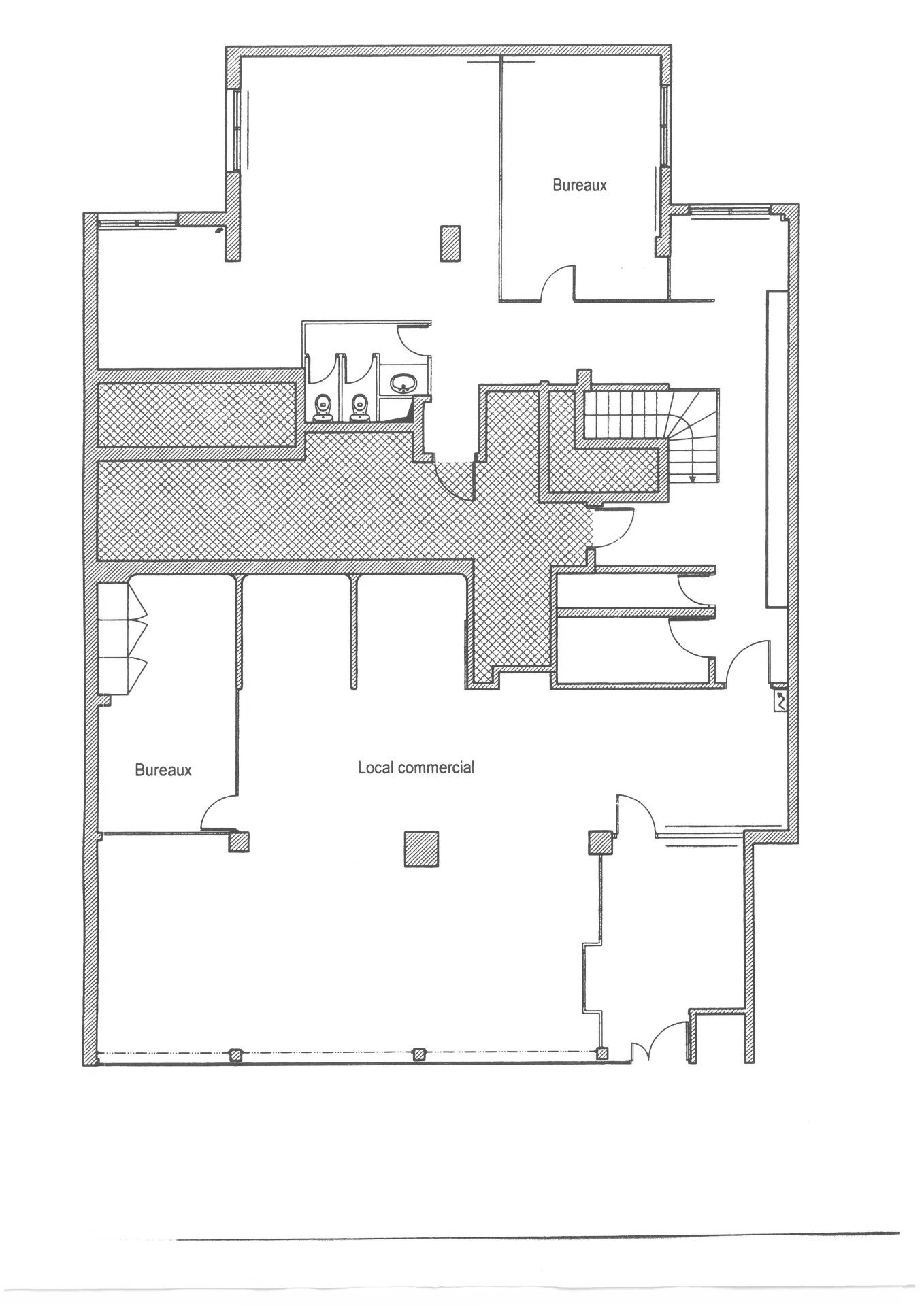
Local commercial Bricolage

Local commercial Bricolage

Longchamp 92200 Neuilly-sur-Seine
0 pièce 406.27 m2 Exclusivité
Référence : 77102
2 300 003 €
5 661 € / m²

Conditions de vente

2 300 003 €

Charges immeuble
17 800 € / an
Taxe foncière
Non renseignée
Honoraires TTC
79 923 € *

* Soit 2 220 080,00 € + honoraires de 3,60% TTC À la charge de l'acquéreur

Informations

Étage : RDC
Gardien

Description

Local commercial Bricolage IPH Conseil vous propose en exclusivité la vente d’un local commercial loué, idéalement situé à Neuilly-sur-Seine, en rez-de-chaussée d’un immeuble de standing, avec un accès direct au sous-sol. Adresse : Neuilly-sur-Seine Surface totale : 406,27 m² (rez-de-chaussée + sous-sol) Annexes : 7 emplacements de stationnement inclus dans la vente, situés dans l’immeuble Investissement sécurisé Le local est occupé depuis 2012 par un locataire de qualité, qui vient de renouveler son bail commercial 3/6/9 à compter du 1er juillet 2024, avec une échéance au 30 juin 2033. Conditions locatives Loyer annuel : 143 987 euros HT (TVA en sus) Charges : 4 450 euros HT / trimestre, payées d’avance Bail commercial conforme à la législation en vigueur Atouts de l’investissement Emplacement premium à Neuilly-sur-Seine Locataire en place depuis plus de 10 ans Bail neuf pour une visibilité locative longue durée Immeuble de qualité 7 places de parking incluses Contactez nous dès maintenant pour plus d’informations ou organiser une visite.
Mis à jour le 07/01/2026

Relevés techniques

Diagnostic de performance énergétique :

Production eau chaude

Production chauffage


Les informations sur les risques auxquels ce bien est exposé sont disponibles sur le site Géorisques : www.georisques.gouv.fr