548 000 €
6 886 € / m²

Appartement T3 de 80m2 avec Terrasse

Appartement T3 de 80m2 avec Terrasse

73590 Notre-Dame-de-Bellecombe
3 pièces 79.58 m2
Référence : 73NEWBAJA107
548 000 €
6 886 € / m²

Conditions de vente

548 000 €

Taxe foncière
Non renseignée

Informations

2 chambres
Étage : 1
1 salle d'eau
1 douche
1 WC
Bâtiment de : 2 étages
Terrasse
Mono-propriété

Description

Dans un écrin majestueux, cerné par les sommets, les forêts de sapins et les lacs alpins au sein de la station village de Notre-Dame-De-Bellecombe.

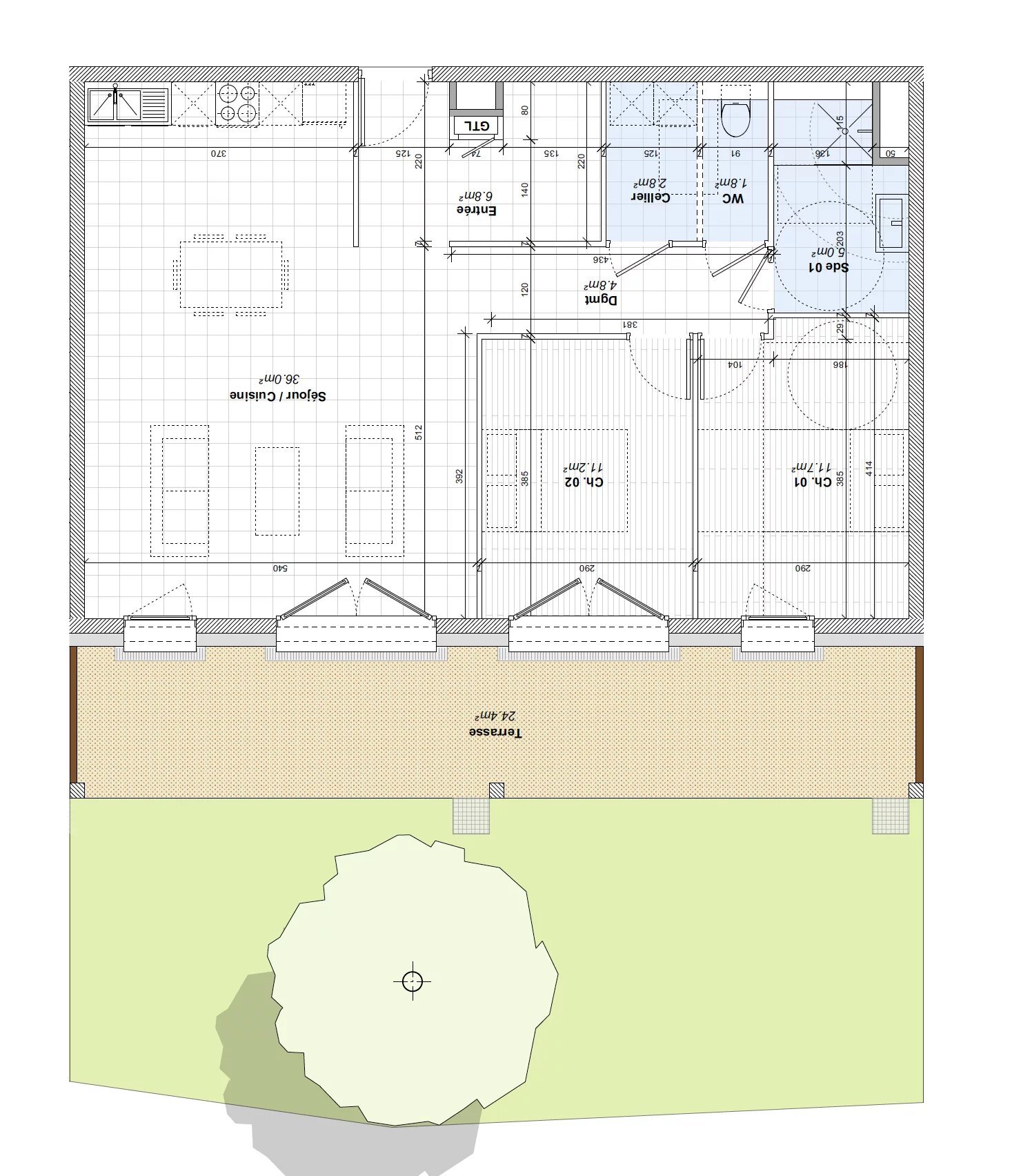
Ce beau appartement se compose :

- d'une entrée,
- d'un séjour/cuisine de 36m2
- 2 chambres,
- et d'une grande terrasse de plus de 24m2

Garage disponible en sus.
Pour plus d'information, merci de nous contacter
Mis à jour le 27/03/2026

Relevés techniques

Traversant
Non
Vitrage
Double

DPE : 71
A
B
C
D
E
F
G
GES : 7
A
B
C
D
E
F
G
Diagnostic réalisé le: 07/07/2025

Production eau chaude
Individuel Électrique

Production chauffage
Individuel Électrique


Les informations sur les risques auxquels ce bien est exposé sont disponibles sur le site Géorisques : www.georisques.gouv.fr

État et prestations

État général
Excellent

Cuisine
Prestations
État
Salles de bain
Prestations
État
Sol(s)
Prestations
État
Fenêtres
Prestations
État

Détails des surfaces

Espace
Carrez
Au sol
Entrée
6.8 m²
0 m²

Séjour / cuisine
36 m²
0 m²

Dégagement
4.8 m²
0 m²

Chambre 1
11.7 m²
0 m²

Chambre 2
11.2 m²
0 m²

Salle de douche
5 m²
0 m²

Cellier
2.28 m²
0 m²

WC
1.8 m²
0 m²

Terrasse
0 m²
24.4 m²

Total
79.58 m²
24.40 m²