925 000 €
8 838 € / m²

Spécial investisseur - 4 pièces Duplex à la Rochelle

Spécial investisseur - 4 pièces Duplex à la Rochelle

17000 La Rochelle
4 pièces 104.66 m2
Référence : 17ROCHEDUPAT302
925 000 €
8 838 € / m²

Conditions de vente

925 000 €

Taxe foncière
Non renseignée

Informations

3 chambres
Étage : 3
2 salles d'eau
2 douches
1 WC
Bâtiment de : 3 étages
Ascenseur
Mono-propriété

Description

Idéalement placé entre le marché central et le Vieux-Port au coeur historique de la Rochelle. Dans un cadre citadin et proche des commerces, des transports.

Cet appartement en réhabilitation est éligible à la loi Malraux et peut être optimisé au déficit foncier.

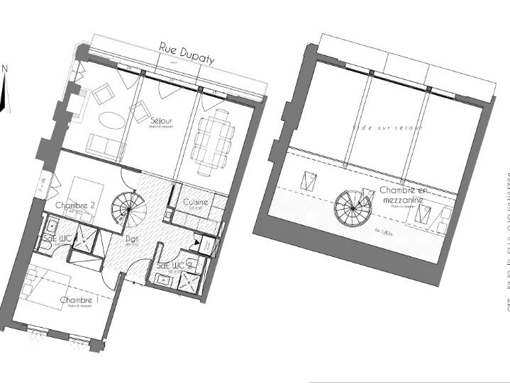
Il se compose :

- d'un séjour de plus de 33m2,
- d'un espace cuisine,
- de 2 salles de douche,
- 3 chambres, dont une en mezzanine de plus de 24m2.

Pour plus d'information, merci de nous contacter directement.
Mis à jour le 27/03/2026

Relevés techniques

Traversant
Non
Vitrage
Double

DPE : 107
A
B
C
D
E
F
G
GES : 7
A
B
C
D
E
F
G
Diagnostic réalisé le: 09/01/2026

Production eau chaude
Individuel Gaz

Production chauffage
Individuel Gaz


Les informations sur les risques auxquels ce bien est exposé sont disponibles sur le site Géorisques : www.georisques.gouv.fr

État et prestations

État général
Excellent

Cuisine
Prestations
État
Salles de bain
Prestations
État
Sol(s)
Prestations
État
Fenêtres
Prestations
État

Détails des surfaces

Espace
Carrez
Au sol
Séjour
33.02 m²
0 m²

Cuisine
4.4 m²
0 m²

Salle de douche
3.64 m²
0 m²

Salle de douche
3.79 m²
0 m²

Chambre 1
10.88 m²
0 m²

Chambre 2
14.06 m²
0 m²

Chambre 3
24.19 m²
0 m²

Dégagement
10.68 m²
0 m²

Total
104.66 m²
0.00 m²