394 000 €
15 421 € / m²

Studio de 25m2 à coeur de Levallois Perret

Studio de 25m2 à coeur de Levallois Perret

92300 Levallois-Perret
1 pièce 25.55 m2
Référence : 92LEVACATEA205
394 000 €
15 421 € / m²

Conditions de vente

394 000 €

Taxe foncière
Non renseignée

Informations

Étage : 2
1 salle d'eau
1 douche
1 WC
Bâtiment de : 5 étages
1 parking
Ascenseur
Balcon
Mono-propriété

Description

Au coeur d'une ville dynamique, à proximité des commerces, restaurants, écoles et à deux pas du métro ligne 3.

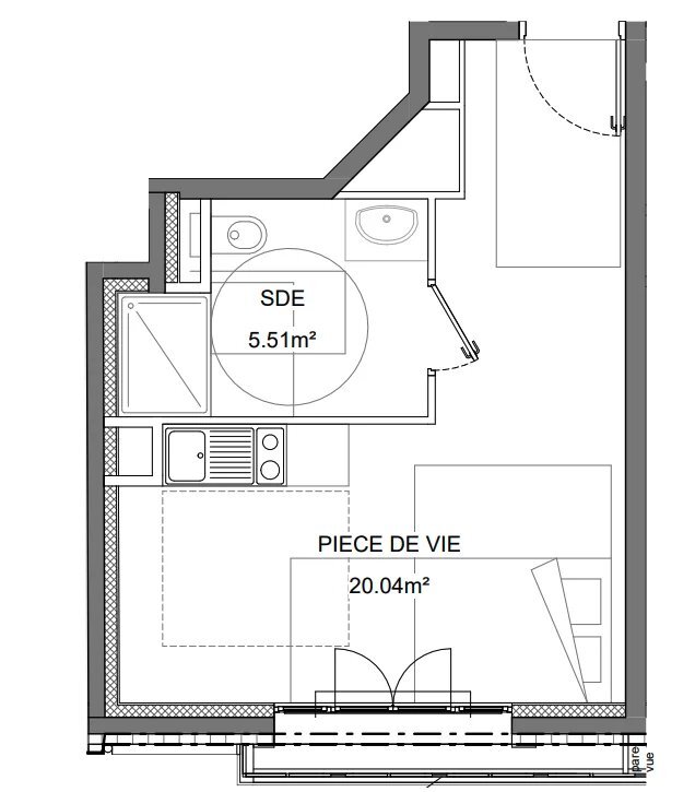
Cet appartement se compose :

- d'une pièce de vie de plus de 20m2,
- d'une salle de douche de plus de 5m2,
- et d'un petit espace extérieur.

Une place de parking est à rajouter en sus à hauteur de 35 000€.

Pour plus d'information, merci de nous contacter directement.
Mis à jour le 27/03/2026

Relevés techniques

Traversant
Non
Vitrage
Double

DPE : 107
A
B
C
D
E
F
G
GES : 7
A
B
C
D
E
F
G
Diagnostic réalisé le: 13/02/2026

Production eau chaude
Individuel Gaz

Production chauffage
Individuel Gaz


Les informations sur les risques auxquels ce bien est exposé sont disponibles sur le site Géorisques : www.georisques.gouv.fr

État et prestations

État général
Excellent

Cuisine
Prestations
État
Salles de bain
Prestations
État
Sol(s)
Prestations
État
Fenêtres
Prestations
État

Détails des surfaces

Espace
Carrez
Au sol
Séjour / cuisine
20.04 m²
0 m²

Salle de douche
5.51 m²
0 m²

Balcon
0 m²
0.86 m²

Total
25.55 m²
0.86 m²