229 165 €
5 196 € / m²

Spécial investisseur : Appartement T2 aux Sables d'Olonne

Spécial investisseur : Appartement T2 aux Sables d'Olonne

85100 Les Sables-d'Olonne
23 pièces 44.1 m2
Référence : 85SABLEDEEPHEMA205
229 165 €
5 196 € / m²

Conditions de vente

229 165 €

Taxe foncière
Non renseignée

Informations

1 chambre
Étage : 1
1 salle d'eau
1 douche
1 WC
Bâtiment de : 2 étages
Balcon
Mono-propriété

Description

Bien idéalement situé à seulement 850m2 des plages. Cette résidence est également à 3 minutes des transports, et au pied des commerces.

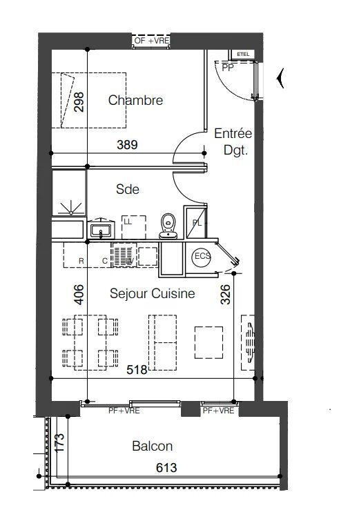
Cet appartement se compose :

- d'une entrée,
- d'un séjour/cuisine,
- d'une chambre,
- d'une salle de douche,
- d'un balcon,


Pour plus d'information, merci de nous contacter directement.
Mis à jour le 27/03/2026

Relevés techniques

Traversant
Non
Vitrage
Double

DPE : 107
A
B
C
D
E
F
G
GES : 7
A
B
C
D
E
F
G
Diagnostic réalisé le: 02/03/2026

Production eau chaude
Individuel Gaz

Production chauffage
Individuel Gaz


Les informations sur les risques auxquels ce bien est exposé sont disponibles sur le site Géorisques : www.georisques.gouv.fr

État et prestations

État général
Excellent

Cuisine
Prestations
État
Salles de bain
Prestations
État
Sol(s)
Prestations
État
Fenêtres
Prestations
État

Détails des surfaces

Espace
Carrez
Au sol
Séjour / cuisine
20.45 m²
0 m²

Chambre 1
11.6 m²
0 m²

Salle de douche
6 m²
0 m²

Entrée
6.1 m²
0 m²

Balcon
0 m²
10.05 m²

Total
44.15 m²
10.05 m²