929 000 €
9 677 € / m²

Appartement T5 en Duplex - 96m2 à Courbevoie

Appartement T5 en Duplex - 96m2 à Courbevoie

92400 Courbevoie
5 pièces 96 m2
Référence : 92COURWEMTIM3
929 000 €
9 677 € / m²

Conditions de vente

929 000 €

Taxe foncière
Non renseignée

Informations

4 chambres
Étage : RDC
2 salles d'eau
1 douche
1 baignoire
2 WCs
Bâtiment de : 5 étages
Terrasse
Jardin
Local à vélo
Mono-propriété
Adapté PMR

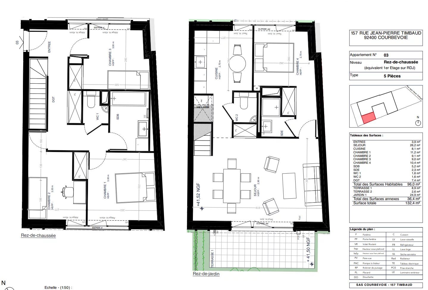
Description

Idéalement placé à Coubevoie dans une résidence moderne.

Cet appartement Duplex se compose :

Au rez-de-jardin :
- d'un séjour de 26,2m2,
- d'une cuisine séparée de plus de 8m,
- une chambre de 10,4m2,
- une salle de douche,
- toilettes
- une terrasse/jardin donnant sur le séjour.

Au rez-de-chaussée :
- 3 chambres,
- d' une salle de bain et de toilettes.

Cette résidence moderne est située au coeur de Courbevoie à proximité des commerces, transports, écoles.
Pour plus d'information merci de nous contacter directement
Mis à jour le 31/03/2026

Équipements

Fibre

Relevés techniques

Traversant
Non
Vitrage
Double

DPE : 50
A
B
C
D
E
F
G
GES : 5
A
B
C
D
E
F
G
Diagnostic réalisé le: 11/03/2025

Production eau chaude
Individuel Gaz

Production chauffage
Individuel Gaz


Les informations sur les risques auxquels ce bien est exposé sont disponibles sur le site Géorisques : www.georisques.gouv.fr

État et prestations

État général
Excellent

Cuisine
Prestations
État
Salles de bain
Prestations
État
Sol(s)
Prestations
État
Fenêtres
Prestations
État

Détails des surfaces

Espace
Carrez
Au sol
Entrée
3.9 m²
0 m²

Séjour
26.2 m²
0 m²

Cuisine
8.1 m²
0 m²

Chambre 1
11.2 m²
0 m²

Chambre 2
9.1 m²
0 m²

Chambre 3
9 m²
0 m²

Chambre 4
10.4 m²
0 m²

Salle de bain
5.2 m²
0 m²

Salle de douche
2.3 m²
0 m²

Dégagement
7.4 m²
0 m²

Terrasse
0 m²
0 m²

Terrasse
0 m²
0 m²

Jardin
0 m²
0 m²

Total
92.80 m²
0.00 m²