780 000 €
12 226 € / m²

Appartement T3 duplex à Sceaux

Appartement T3 duplex à Sceaux

92330 Sceaux
3 pièces 63.8 m2
Référence : 92SCEAFCCHARA0002
780 000 €
12 226 € / m²

Conditions de vente

780 000 €

Taxe foncière
Non renseignée

Informations

2 chambres
Étage : RDC
2 salles d'eau
2 douches
2 WCs
Bâtiment de : 4 étages
Terrasse
1 parking
Jardin
Ascenseur
Local à vélo
Mono-propriété

Description

Résidence proche du RER B et idéalement placé au coeur de Sceaux à proximité des écoles, commerces et transports.

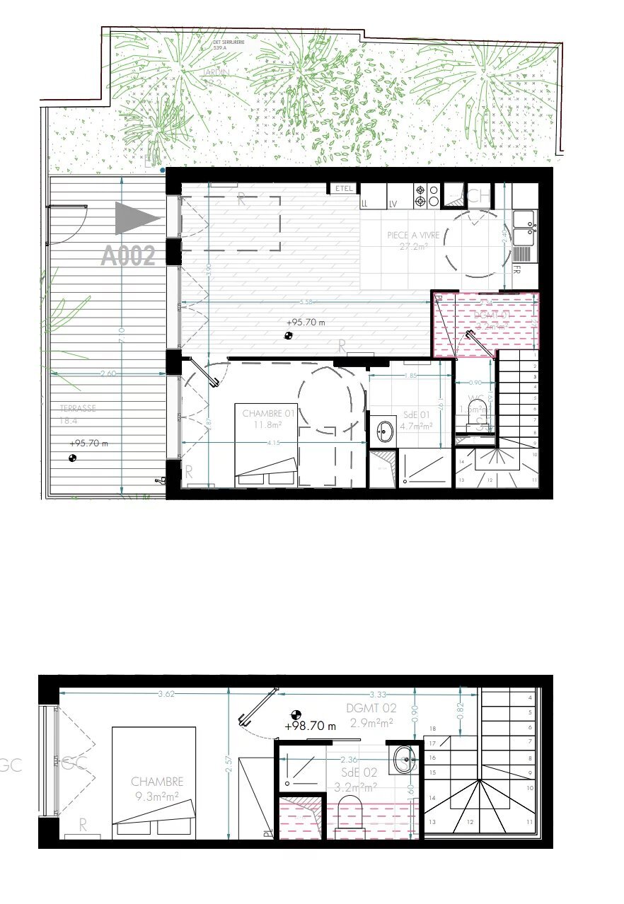
Cet appartement T3 duplex est composé

au RDC :
- d'une belle pièce à vivre de 27,20m2 donnant sur une terrasse et un jardin privatif,
- d'une salle d'eau,
-d'une chambre de plus de 11m2,

L'étage est composé :
- d'une salle de bain
- d'une chambre de plus de 9m2.

Ce bien est vendu avec une place de parking.
Pour plus d'information, merci de nous contacter directement
Mis à jour le 24/03/2026

Équipements

Fibre

Relevés techniques

Traversant
Non
Vitrage
Double

DPE : 107
A
B
C
D
E
F
G
GES : 7
A
B
C
D
E
F
G
Diagnostic réalisé le: 09/04/2025

Production eau chaude
Individuel Gaz

Production chauffage
Individuel Gaz


Les informations sur les risques auxquels ce bien est exposé sont disponibles sur le site Géorisques : www.georisques.gouv.fr

État et prestations

État général
Excellent

Cuisine
Prestations
État
Salles de bain
Prestations
État
Sol(s)
Prestations
État
Fenêtres
Prestations
État

Détails des surfaces

Espace
Carrez
Au sol
Séjour / cuisine
27.2 m²
0 m²

Salle de douche
4.7 m²
0 m²

Dégagement
3.2 m²
0 m²

Chambre 1
11.8 m²
0 m²

Chambre 2
9.3 m²
0 m²

Salle de douche
3.2 m²
0 m²

Dégagement
2.9 m²
0 m²

Terrasse
0 m²
0 m²

Jardin
0 m²
0 m²

Total
62.30 m²
0.00 m²